Works岡崎戸建
Works岡崎戸建

こだわりいっぱいのフルリノベーション済み中古戸建が登場!
一般的な建売住宅をこれでもかとこだわりの詰まった空間にリノベーションしました。内外装とも贅沢に費用を惜しまずに創り上げました。その分お好みは分かれると思いますが、ハマる方には間違いなく気に入っていただけること間違いなしです!ぜひこのこだわりの空間を体感ください!
リノベーション済み中古一戸建住宅岡崎戸建
京都市左京区
- 販売価格
- 3,800万
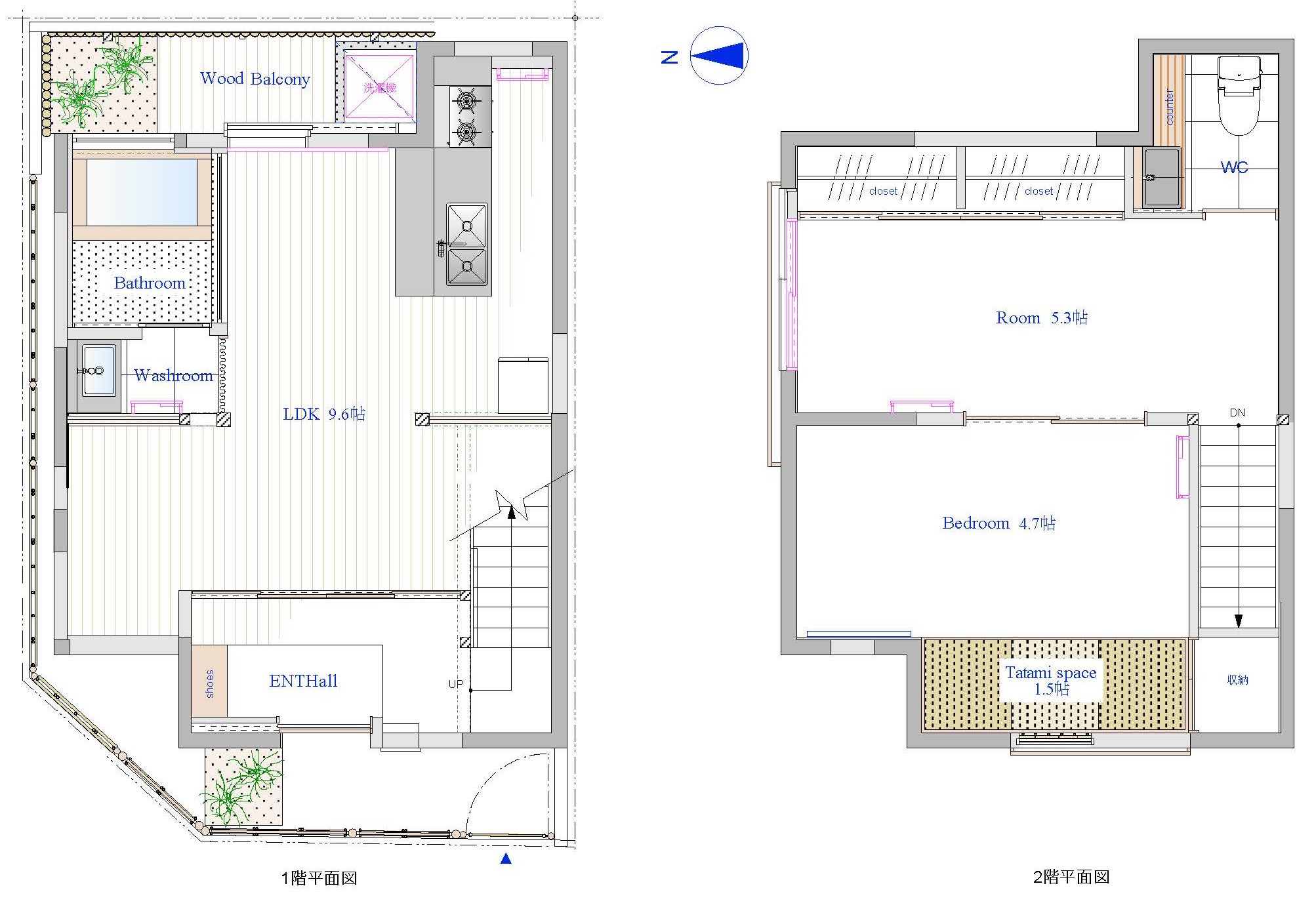
- 間取り
- 2LDK
- 現況・入居時期
- 空室
- 住所
- 京都市左京区岡崎西福ノ川町7-13
- 交通
- 京都バス「熊野神社前」バス停徒歩8分
- 建物
- 木造瓦葺2階建
- 専有面積
- 54.66㎡(1F26.73㎡・2F27.93㎡)㎡
- 住戸設備
- 全室照明器具付き、2Fのみエアコン1基付き
- 建物設備
- 関西電力・京都市公営上下水道・大阪ガス
- 各部仕上げ
- 壁面:壁面ジョリパッド塗装仕上(一部PB下地)・天井:スケルトンOS塗装仕上・床材:カリン無垢フローリング(床暖対応)、ボルドーパイン無垢フローリング(2F)・バスルーム:在来工法(モルタル塗り仕上げ)・シェルフ、クローゼット、建具:特注萩すだれ網代板張り製作建具・キッチン:モルタル塗り仕上、特注2層シンク、シングルレバー水栓金具・便器:LIXIL製・その他:スイッチ類はスチール製トグルスイッチ・スチール製FIX・目積み畳・外壁:ジョリパッド塗り仕上げ・1Fリビング床暖房設置・壁面デザインウォーマー設置等
- 築年数
- 1984年11月
- リノベーション時期
- 2018年4月
- その他
- 売主の契約不適合責任は免責とします。また売主による建物現況調査は行いません。未登記部分が1階に約1.2㎡あります。
-
https://maps.app.goo.gl/NaDHKGLoi54EKVkf7
- 備考
- 売主の契約不適合責任は免責とします。また売主による建物現況調査は行いません。未登記部分が1階に約1.2㎡あります。























